Attersee-Region: Wohnen wie im Urlaub | provi­si­onsfrei | seltene Gelegenheit

4860 Lenzing (Österreich), Zweifamilienhaus zum Kauf

Kaufpreis: 499.000 EUR

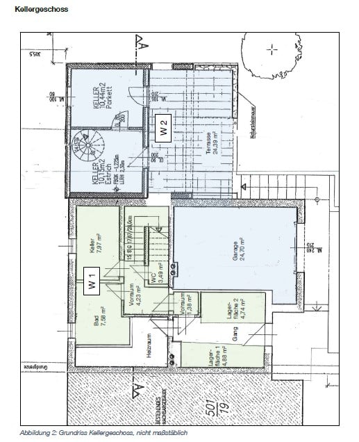
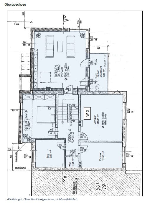
Objektdaten

  • Objekt-ID
    MM-009402
  • Objekttypen
    Haus, Zweifamilienhaus
  • Adresse
    4860 Lenzing
    (Oberösterreich)
    Oberösterreich
    Österreich
  • Etagen im Haus
    4
  • Wohnfläche ca.
    147,61 m²
  • Nutzfläche ca.
    110 m²
  • Grund­stück ca.
    267 m²
  • Zimmer
    5
  • Schlafzimmer
    3
  • Badezimmer
    1
  • Separate WC
    2
  • Balkone
    2
  • Terrassen
    2
  • Küche
    Einbauküche
  • Heizungsart
    Zentralheizung
  • Wesentlicher Energieträger
    Fernwärme
  • Baujahr
    1965
  • Zustand
    teil-/vollsaniert
  • Ausstattung
    Standard
  • Bauweise
    Massiv
  • Stellplätze gesamt
    2
  • Garagen­stellplätze
    2 Stellplätze
  • Carport­stellplätze
    2 Stellplätze
  • Verfügbar ab
    sofort
  • Kaufpreis
    499.000 EUR

Energieausweis

  • Energieausweistyp
    Bedarfs­ausweis
  • Gültig bis
    02.03.2036
  • Gebäudeart
    Wohngebäude
  • Baujahr lt. Energieausweis
    1965
  • Primärenergieträger
    Fernwärme
  • Endenergie­bedarf
    51,10 kWh/(m²·a)
  • Warmwasser enthalten
    ja
  • Energie­effizienz­klasse
    B
0 25 50 75 100 125 150 175 200 225 250+ H G F E D C B A A+ H G F E D C B A A+ Endenergiebedarf 51,10 kWh/(m²·a)
Kindergarten 600 m | Grundschule 1 km | Realschule 1 km | Gymnasium 7 km | Autobahn 5 km | Zentrum 600 m 

Die ungefähre Position der Immobilie auf Google Maps ansehen (Link auf externe Website)

Dieses besondere Zuhause überrascht mit Raum, Licht und außergewöhnlichen Rückzugsorten: Auf rund 147 m² Wohnfläche entfaltet sich ein durchdachtes Wohnkonzept, das den Charme eines soliden Altbaus mit der Großzügigkeit eines modernen Zubaus verbindet.

Schon beim Ankommen spürt man: Hier ist Platz zum Leben.

Ein echtes Highlight sind die vielfältigen Außenflächen:
Der sonnige Garten mit Blick ins Grüne, zwei Balkone, eine großzügige Terrasse und vor allem die uneinsehbare Dachterrasse mit ca. 30 m² schaffen seltene Freiräume – perfekt zum Entspannen, Genießen und Abschalten.

Im Inneren überzeugt das Haus mit einem rund 30 m² großen Wohnbereich, der durch den gemütlichen Kaminofen zum Mittelpunkt des täglichen Lebens wird – mit direktem Zugang zur Dachterrasse.

Abgerundet wird dieses attraktive Gesamtangebot durch eine Einbauküche (bereits im Preis enthalten), Garage und Carport sowie eine sehr gute Energieeffizienz (HWB 51,1 – Klasse B).

Ein Zuhause, das man nicht nur besichtigt – sondern sofort spürt.
Überzeugen Sie sich selbst.

ca. 147 m² Wohnfläche
5 Zimmer, 3 Schlafzimmer
2 Balkone einer davon vollflächig verglast
1 Terrasse mit Gartenzugang
1 Dachterrasse mit 30 m² (uneinsehbar)
Kaminofen im Wohnzimmer
Einbauküche inklusive
Fernwärme / Zentralheizung
Garage + Carport
Garten mit Regenwassertank (3.000 L)
Sehr gute Energieeffizienz (HWB 51,1 – B)

  • - Badewanne
  • - Balkon
  • - Balkon/Terrasse Süd
  • - Carport
  • - Dusche
  • - Einbauküche
  • - Garage
  • - Garten/Gartennutzung
  • - Gäste-WC
  • - Kabel-/Sat-TV
  • - Kamin
  • - Keller
  • - Massivbauweise
  • - Separates WC
  • - Terrasse
  • - Wintergarten

Die Immobilie befindet sich in einer Sackgasse in ruhiger und dennoch zentraler Lage in Lenzing. Einkaufsmöglichkeiten, Schulen und Kinderbetreuung sind bequem erreichbar.

Die gute Anbindung an die A1 Westautobahn sowie die Nähe zum Zentrum sorgen für eine perfekte Kombination aus Wohnqualität und Infrastruktur.

Die gelungene Kombination aus guter Infrastruktur, naturnahem Wohnen und hervorragender Verkehrsanbindung macht die Immobilie sowohl für Familien als auch für Pendler besonders attraktiv.

Alle Angaben sind ohne Gewähr und basieren ausschließlich auf Informationen, die uns von unserem Auftraggeber übermittelt wurden. Wir übernehmen keine Gewähr über die Vollständigkeit, Richtigkeit und Aktualität dieser Angaben. Irrtum und Zwischenverkauf oder Zwischenvermietung vorbehalten.

Aufgrund des Gesetzes über das Aufspüren von Gewinnen aus schweren Straftaten (Geldwäschegesetz - GwG) von 2008 sind wir im Zuge der allgemeinen Sorgfaltspflicht dazu verpflichtet, spätestens wenn Kaufinteresse bekundet wird, Ihre Personalien zu überprüfen und dies auch dem Gesetzgeber gegenüber nachzuweisen. Bitte haben Sie daher Verständnis, dass wir eine Kopie Ihres Personalausweises anfertigen müssen. Diese, sowie sämtliche Daten, werden durch uns selbstverständlich streng vertraulich behandelt.

Erfüllungsort für alle Verpflichtungen des Kunden ist der Sitz unserer Firma. Ist der Kunde Kaufmann im Sinne des HGB, ist Gerichtsstand der Sitz unserer Firma.

Hinweis zur Darstellung / Homestaging:
Bei den in diesem Exposé dargestellten Innenaufnahmen handelt es sich teilweise um visualisierte Darstellungen. Die Räume wurden digital mittels Homestaging eingerichtet, um mögliche Einrichtungs- und Nutzungsmöglichkeiten zu veranschaulichen.

Die gezeigten Möbel, Dekorationen und Ausstattungsdetails sind nicht Bestandteil des Angebots und dienen ausschließlich der besseren Vorstellung der Raumwirkung.

Abweichungen zwischen der dargestellten Möblierung und dem tatsächlichen Zustand der Immobilie sind möglich. Maßgeblich ist ausschließlich der reale Zustand bei Besichtigung.

Ihre Ansprechpartnerin

Carolin Reif-Guttenbrunner, Mein Makler Vorarlberg & Heilbronn

Direktanfrage

* Pflichtangaben
 SSL-verschlüsselt