CHARMANTES REIHENENDHAUS IM MODERNEN COTTAGESTIL - RUHIGE SACKGASSENLAGE NAHE AASEE

49477 Ibbenbüren, Reihenendhaus zum Kauf

verkauft

Dieses Objekt ist zur Zeit leider nicht verfügbar.

Kaufpreis: 249.000 EUR
Provision: 3,57 % inkl. Mehrwertsteuer

Objektdaten

  • Objekt-ID
    MM-007975
  • Objekttypen
    Haus, Reihenendhaus
  • Adresse
    49477 Ibbenbüren
    (Emsdetten)
    Nordrhein-Westfalen
  • Etagen im Haus
    2
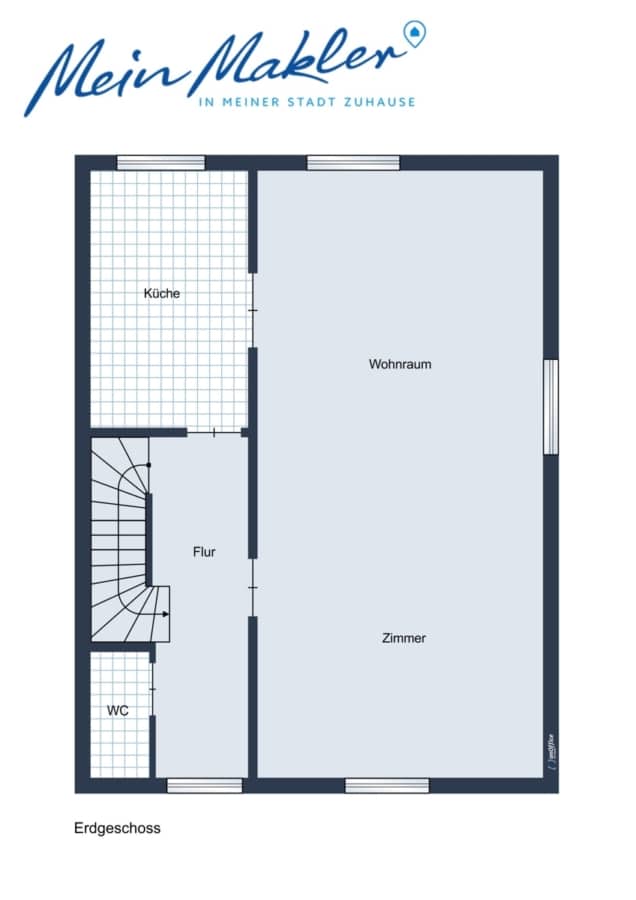
  • Wohnfläche ca.
    101 m²
  • Nutzfläche ca.
    25 m²
  • Grund­stück ca.
    328 m²
  • Zimmer
    5
  • Schlafzimmer
    3
  • Badezimmer
    1
  • Separate WC
    1
  • Terrassen
    1
  • Küche
    Einbauküche
  • Heizungsart
    Zentralheizung
  • Wesentlicher Energieträger
    Öl
  • Baujahr
    1953
  • Zustand
    modernisiert
  • Ausstattung
    Standard
  • Bauweise
    Massiv
  • Käufer­provision
    3,57 % inkl. Mehrwertsteuer
  • Kaufpreis
    249.000 EUR

Die dargestellte Position der Immobilie ist nur eine ungefähre Angabe.

CHARMANTES REIHENENDHAUS IM MODERNEN COTTAGESTIL-
RUHIGE SACKGASSENLAGE NAHE AASEE

In idyllischer Lage unweit des beliebten Aasees erwartet Sie dieses charmante Reihenendhaus aus dem Jahr 1953. Es wurde fortlaufend modernisiert und verbindet stilvoll den Charakter eines Cottages mit moderner Ausstattung und durchdachten Details.

Das Haus befindet sich auf einem 328 m² großen Grundstück in sonniger Südostausrichtung – ideal für Gartenliebhaber und Sonnenfreunde. Die gepflegte Außenanlage überzeugt mit mediterranem Flair, einem Regenwasserspeicher, einem Gewächshaus sowie einer überdachten Terrasse, die zum Verweilen einlädt. Ein Holzschuppen und eine großzügige Garage mit Werkbereich bieten zudem praktischen Stauraum.

Die Wohnfläche beträgt ca. 79 m² und wird durch etwa 22 m² wohnlich ausgebaute Nutzfläche im Dachgeschoss ergänzt. Das Haus ist teilunterkellert und präsentiert sich mit einer ansprechenden Raumaufteilung. Ein Highlight ist der Kachelofen aus dem Jahr 2014, der besonders an kühlen Tagen für wohlige Wärme sorgt.

Im Zuge der Modernisierungen wurden unter anderem das Dach erneuert und der Dachausbau vorgenommen (2000), die Elektrik überarbeitet (2008) sowie Fenster, Bad und Gäste-WC im Jahr 2014 erneuert. Blendläden an den Fenstern unterstreichen den gemütlichen Cottagestil.

Diese Immobilie vereint eine ruhige Wohnlage in einer Sackgasse mit der Nähe zum Aasee und einer hervorragenden Infrastruktur – ideal für alle, die stadtnah und dennoch naturnah wohnen möchten.

- 79 m² Wohnfläche + ca. 22 m² wohnlich ausgebaute Nutzfläche im Dachgeschoss
- 5 Zimmer (3 mögliche Schlafzimmer)
- 328 m² Grundstück in Südostlage (Sackgasse)
- Regenwasserspeicher, überdachte Terrasse
- Kachelofen, Fenster 3-fach (2014)
- Einbauküche im Kaufpreis enthalten
- Tageslichtbadezimmer mit Dusche (2014)
- Elektrik (2008)
- große Garage mit Werkbereich
- Holzschuppen, Gewächshaus
- Heizung (1987) Brenner (2001, 2016 eingebaut)
- Energieausweis liegt zur Besichtigung vor

  • - Altbau
  • - Dusche
  • - Einbauküche
  • - Garten/Gartennutzung
  • - Gäste-WC
  • - Kamin
  • - Keller
  • - Massivbauweise
  • - Separates WC
  • - Tageslichtbad
  • - Terrasse

Ibbenbüren ist die größte Stadt im westfälischen Tecklenburger Land und liegt malerisch eingebettet zwischen dem Schafberg im Norden und dem Teutoburger Wald im Süden. Mit rund 51.800 Einwohnern ist sie nach Rheine die zweitgrößte Stadt im Kreis Steinfurt.
Sie bietet eine hohe Lebensqualität durch ihre Kombination aus naturnaher Umgebung und urbaner Infrastruktur. Der Aasee im Osten Ibbenbürens dient als Naherholungsgebiet und bietet Möglichkeiten zum Segeln, Angeln und Spazierengehen. Die Dörenther Klippen mit dem markanten Felsen „Hockendes Weib“ sind ein beliebtes Ausflugsziel für Wanderer und Naturfreunde.
Verkehrstechnisch ist Ibbenbüren gut angebunden: Die Autobahn A30 verläuft durch das Stadtgebiet und verbindet die Stadt mit Osnabrück im Osten und Rheine im Westen. Der Bahnhof Ibbenbüren liegt an der Bahnstrecke Löhne–Rheine und bietet regelmäßige Verbindungen in Richtung Osnabrück, Bielefeld und Hannover.
Ibbenbüren verfügt über eine lebendige Innenstadt mit zahlreichen Einkaufsmöglichkeiten, Restaurants und Cafés. Kulturelle Veranstaltungen wie die Ibbenbürener Kirmes, eines der größten Volksfeste in Nordrhein-Westfalen, ziehen jährlich viele Besucher an.
Die Stadt ist zudem ein attraktiver Wohnort für Pendler, da größere Städte wie Osnabrück und Münster in kurzer Zeit erreichbar sind. Mit ihrer Kombination aus naturnaher Lage, guter Infrastruktur und vielfältigem Freizeitangebot bietet Ibbenbüren eine hohe Lebensqualität für Einwohner und Besucher gleichermaßen.
Die Immobilie befindet sich nördlich des beliebten Aasees, in einer ruhigen Sackgassenlage. Die Umgebung bietet eine gelungene Kombination aus grüner, familienfreundlicher Wohnlage und guter Anbindung an die Innenstadt. Einkaufsmöglichkeiten, Schulen und Freizeitangebote sind schnell erreichbar.

Alle Angaben sind ohne Gewähr und basieren ausschließlich auf Informationen, die uns von unserem Auftraggeber übermittelt wurden. Wir übernehmen keine Gewähr für die Vollständigkeit, Richtigkeit und Aktualität dieser Angaben. Irrtum und Zwischenverkauf oder Zwischenvermietung vorbehalten. Aufgrund des Gesetzes über das Aufspüren von Gewinnen aus schweren Straftaten (Geldwäschegesetz - GwG) von 2008 sind wir im Zuge der allgemeinen Sorgfaltspflicht dazu verpflichtet, spätestens wenn Kaufinteresse bekundet wird, Ihre Personalien zu überprüfen und dies auch dem Gesetzgeber gegenüber nachzuweisen. Bitte haben Sie daher Verständnis, dass wir eine Kopie Ihres Personalausweises anfertigen müssen. Diese sowie sämtliche Daten werden durch uns selbstverständlich streng vertraulich behandelt. Erfüllungsort für alle Verpflichtungen des Kunden ist der Sitz unserer Firma. Ist der Kunde Kaufmann im Sinne des HGB ist Gerichtsstand der Sitz unserer Firma.

Ihre Ansprechpartnerin

Iris Stottrop, Mein Makler Emsdetten